
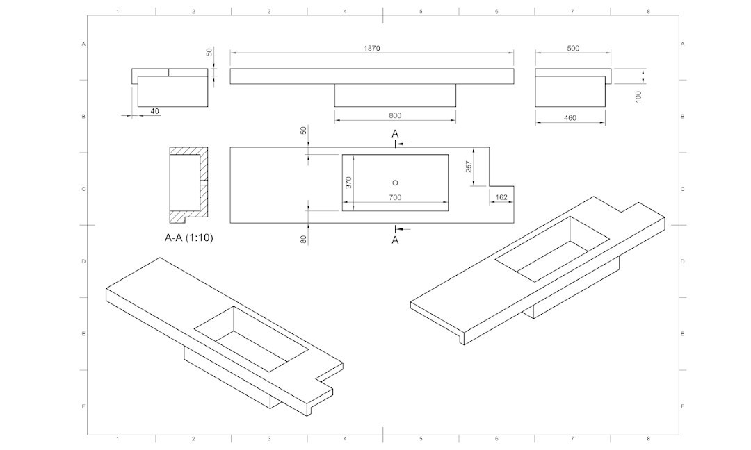
¿Qué es el servicio de modelado 3D de meikin_it?
En meikin_it nos especializamos en el modelado 3D (CAD/CAM) de piezas técnicas y productos, tanto para empresas como para particulares, con un plazo de entrega muy corto. Nuestros expertos en diseño asistido por ordenador son capaces de modelar en 3D cualquier objeto o pieza técnica a partir de un plano, un croquis o cualquier formato gráfico como referencia.
¿Cómo funciona el servicio de modelado 3D?
Si deseas contratar nuestro servicio de modelado 3D, simplemente contáctanos para que podamos asesorarte y ofrecerte la mejor solución para tu proyecto. En el caso de piezas técnicas acotadas que solo necesitan ser convertidas a 3D, puedes contratar nuestro servicio directamente. Solo necesitas adjuntar el archivo base (imagen, boceto, croquis o esquema) con el cual nos basaremos para modelar la pieza y seleccionar el número de piezas que deseas que sean modeladas. En un plazo máximo de 3 días, recibirás tu modelo listo en formato CAD o imagen en los siguientes formatos: 3MF, STEP o STL. Si lo deseas, también podemos mandarte las distintas vistas en perspectiva de la pieza en formato imagen (JPG o PNG) o vectorial (DXF, PDF o SVG).
Usos a partir del modelo 3D
A partir del modelo final 3D, se pueden entregar sus distintas vistas en formato 2D mediante archivos tipo DXF, PDF, SVG o JPG o 3D en: STEP, STL,… Con estos formatos puedes: imprimirla en 3D, cortar la pieza en láser, enviarla a mecanizar, y un sin fin más de opciones.
¿Cuál es el precio del servicio?
El precio del servicio de modelado 3D de meikin_it es de 33,00€ (+IVA) por modelo. Dependiendo de la complejidad de la/s pieza/s se puede optar por un bono de horas definidas contigo, ajustando así el importe total del servicio.
Nuestro principal objetivo es aportar un servicio profesional con un precio que se ajuste a tus necesidades.
*Observaciones:
- En el paso de validación, se incluyen hasta dos modificaciones, si se necesita una modificación que repercuta en incrementos de tiempo, se facturará aparte.
Una vez impresa y enviada la pieza, no nos hacemos responsables de incompatibilidades por causa de errores o ausencia en los planos o datos facilitados. - Si una vez recibida la pieza, requiere de alguna modificación extra y nueva impresión, se presupuestará aparte.
¿Algo qué contarnos?
Si necesitas de nuestra ayuda puedes hacerlo por cualquiera de estas vías
![meikin [ it ]](https://meikinit.com/wp-content/uploads/2020/04/AF-logo-meikinit-NG-AZ-1024x186.png)
![meikin [ it ]](https://meikinit.com/wp-content/uploads/2020/04/AF-logo-meikinit-BL-AZ-1024x186.png)





